10420-1077
Ishall
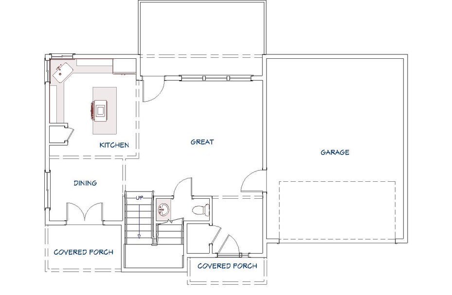
Square
Footage
1747
House
Width
50'
House
Depth
30'
House
Stories
2
Garage
Cars
2
Bedrooms
3
Full Bathrooms
2
Half Bathrooms
1
Interested in this plan?
Awesome! That means the plan only needs a few final touches so that it complies with local city and county codes. These final touches are usually simple, please reach out so we can get this process started!
Want to customize it?
Great! This is where we shine. Reach out, we can customize it exactly as you want it. We'll also make sure it complies with all local city and county codes.
Too big or small?
Do you love the style, love the layout, but it just doesn't fit on the lot you have? Worry not, in most cases, we can shrink or grow the plan up to 10 feet in any direction. Reach out so we can size it to your needs!
This plan can be yours for just
$520.00
+$130 / HOUR
After all modifications are done!
Not feeling this plan?
No worries! We have plenty more plans in our catalog, check it out, adjust your search parameters and look at other plans.
Wanting something more custom?
Sky Builders, LLC not only specializes in new plans for new construction, but prefers it! We offer a different cost offer for brand new plans.
Only
$1.50 / SQ FT
for brand new plans.
Fill out the form below to get that process started.
Reach Out
We don't sell plans "as is". They need to be modified to adhere to local city and county codes. Sometimes these are simple, other times they are complex. Allow us to take care of this process for you. And why not make some minor modifications of your own while we're at it?
Above Plan ID
10420-1077
Above Plan Name
Ishall


















